Каталог

+7(495) 481-39-47

Печь-камин ASTON 12 кВт для помещений до 200 м³. Изготовлена из прочной котловой стали с футеровкой шамотным кирпичом для долгого сохранения тепла. Эффективное горение обеспечивает система вторичного дожига и конвекционные каналы. Облицовка - керамическая плитка.

Наличие: в наличии
Артикул:00000018492
69 750 руб
- +

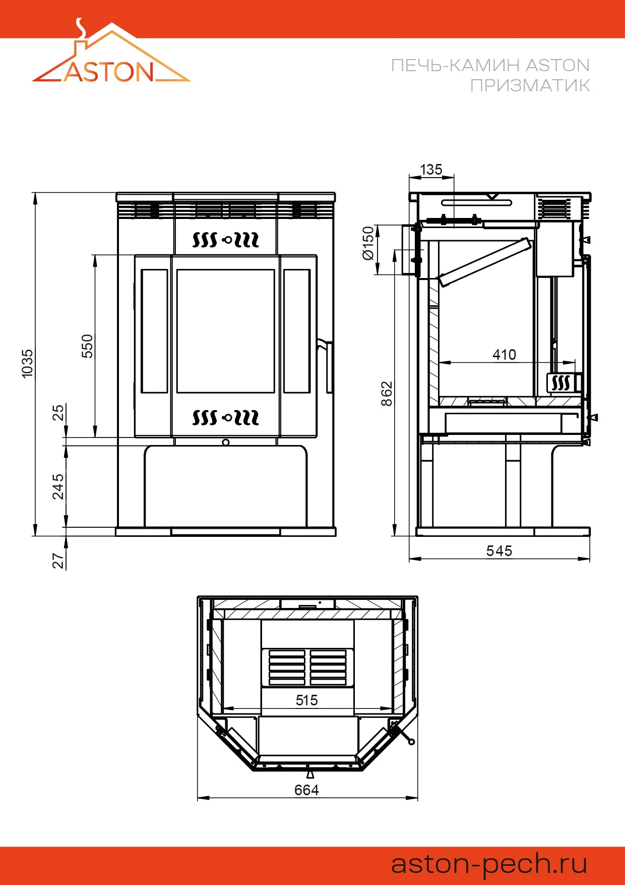
Печь-камин ASTON 12 кВт (200 м3) Призматик изготовлена из особо прочной котловой стали марки 09Г2С. Наиболее термонагруженные участки выполнены из нержавеющей стали марки AISI 430. Печь работает на дровах и рассчитана на пристенное размещение.Номинальная мощность печи – 12 кВт, что позволяет отапливать помещение объёмом до 200 м³.

Топка камина футерована шамотным кирпичом, который защищает боковые стенки и дно топки от тепловой нагрузки. Во время топки шамот накапливает большое количество тепла, которое постепенно отдаёт в окружающее пространство. Это позволяет печи-камину дольше оставаться тёплым и поддерживать вокруг комфортную температуру.

Топка в горизонтальной проекции имеет форму призмы, что позволяет размещать дрова как вдоль, так и поперёк топочного пространства. Длина используемых дров – до 45 см.

На дне топочной камеры размещается чугунный колосник, через который подаётся воздух для горения.

Низ топки спереди ограничен пластиной для предотвращения выпадения дров и раскалённых углей из топочного пространства вперёд.

В верхней части топочной камеры размещён пламегаситель из нержавеющей стали. Эта металлическая пластина толщиной 2 мм изменяет направление дымовых газов и повышает эффективность сгорания дров в топке.

Над передним краем пламегасителя размещается П-образный профиль. Он дополнительно защищает самый термонапряжённый участок верхней панели топки от воздействия высокой температуры и прогорания.

На задней стенке топочной камеры расположен канал для подачи воздуха на вторичный дожиг. П-образный профиль из нержавеющей стали толщиной 2 мм проходит из поддувала в верхнюю часть топки.

Между «крышей» топки и верхней панелью печи есть свободное пространство. Оно служит для усиления конвекционных свойств печи и при этом снижает степень нагрева панели.

Снаружи печь отделана керамической плиткой. Для ускорения движения воздуха и прогрева помещения между облицовкой и корпусом печи устроены щелевидные конвекционные каналы.

Дверь оснащена верхней и нижней системами подачи воздуха: снизу воздух подаётся в поддувальное пространство, сверху – на внутреннюю поверхность стекла.

Патрубок дымохода диаметром 150 мм может быть установлен для вывода продуктов сгорания как на верхнюю панель, так и на заднюю стенку печи.

*Внешний вид и комплектация товара может незначительно отличаться от фотографий на сайте

Характеристики товара

Глубина
545 мм
Стекло
Три стекла
Открывание двери
Боковое
Топливо
Дрова и брикеты
Варочная плита
Нет
Выход дымохода
Сверху/Сзади
Мощность
12 кВт
Объем отапливаемого помещения
200 м3
Высота
1035 мм
Тип дверки
Со стеклом
Страна производитель
Россия
Водяной контур
Нет
Ширина
664 мм
Диаметр дымохода
150 мм
Толщина материала
3 мм
Вес Брутто
175 кг

Похожие товары

* Информация о товаре носит исключительно ознакомительный характер и не является публичной офертой.