Каталог

+7(495) 481-39-47

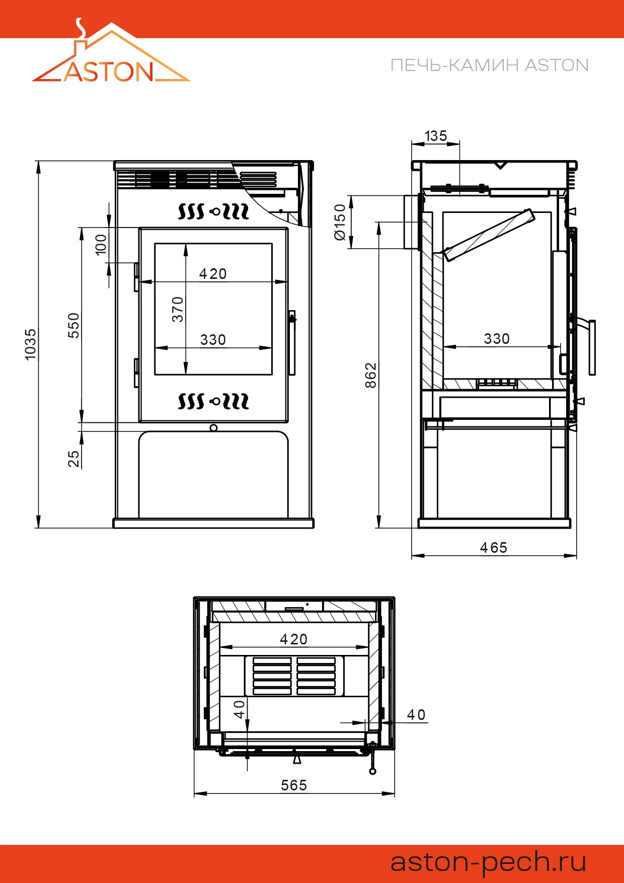
Печь-камин ASTON мощностью 11 кВт для помещений до 180 м³. Изготовлена из прочной котловой стали с футеровкой вермикулитом для длительного сохранения тепла. Облицовка из натурального талькохлорита. Большое жаропрочное стекло. Диаметр дымохода 150 мм.

Наличие: в наличии
Артикул:00000023057
70 120 руб
- +

Печь-камин АСТОН 11 кВт изготовлена из особо прочной котловой стали марки 09Г2С. Наиболее термонагруженные участки выполнены из нержавеющей стали марки AISI 430. Печь работает на дровах и рассчитана на пристенное размещение.

Номинальная мощность печи – 11 киловатт, что позволяет отапливать помещение объёмом до 180 м3.

Топка камина изнутри футерована вермикулитовыми плитами, которые защищают боковые стенки и дно топки от тепловой нагрузки. Во время топки вермикулит накапливает большое количество тепла, которое постепенно отдаёт в окружающее пространство. Это позволяет печи-камину АСТОН дольше оставаться тёплым и поддерживать вокруг комфортную температуру.

Размеры топки позволяют размещать дрова как вдоль, так и поперёк топочного пространства. Длина используемых дров – от 35 до 40 см.

На дне топочной камеры размещается чугунный колосник, через который подаётся воздух для горения.

Низ топки спереди ограничен стальной пластиной с узором в дизайне АСТОН для предотвращения выпадения дров и раскалённых углей из топочного пространства вперёд.

В верхней части топочной камеры размещён пламегаситель из нержавеющей стали. Эта металлическая пластина толщиной 2 мм изменяет направление дымовых газов и повышает эффективность сгорания дров в топке.

Над передним краем пламегасителя размещается П-образный профиль. Он дополнительно защищает самый термонапряжённый участок верхней панели топки от воздействия высокой температуры и прогорания.

На задней стенке топочной камеры расположен канал для подачи воздуха на вторичный дожиг. П-образный профиль из нержавеющей стали толщиной 2 мм размещён заподлицо с облицовкой и проходит из поддувала в верхнюю часть топки.

Между «крышей» топки и верхней панелью печи есть свободное пространство. Оно служит для усиления конвекционных свойств печи и при этом снижает степень нагрева панели.

Снаружи печь отделана плиткой из натурального камня талькохлорита. Для ускорения движения воздуха и прогрева помещения между облицовкой и корпусом печи устроены щелевидные конвекционные каналы.

Дверь модели 320М выполнена в виде вертикального прямоугольника и комплектуется большим обзорным стеклом. Керамическое стекло выдерживает значительные температуры (до 650 градусов в режиме постоянного нагрева) и обеспечивает простой контроль за горением дров в печи.

Дверь оснащается верхней и нижней системами подачи воздуха: снизу воздух подаётся в поддувальное пространство, сверху – на внутреннюю поверхность стекла.

Патрубок дымохода диаметром 150 мм может быть установлен для вывода продуктов сгорания как на верхнюю панель, так и на заднюю стенку печи.

*Внешний вид и комплектация товара может незначительно отличаться от фотографий на сайте

Характеристики товара

Глубина
465 мм
Открывание двери
Боковое
Топливо
Дрова и брикеты
Варочная плита
Нет
Выход дымохода
Сверху/Сзади
Мощность
11 кВт
Объем отапливаемого помещения
180 м3
Колосник и зольник
Есть
Материал облицовки
Амфиболит
Высота
1035 мм
Тип дверки
Со стеклом
Страна производитель
Россия
Материал
Сталь
Водяной контур
Нет
Ширина
565 мм
Диаметр дымохода
150 мм
Вес Брутто
185 кг

Похожие товары

* Информация о товаре носит исключительно ознакомительный характер и не является публичной офертой.