Каталог

+7(495) 481-39-47
Наличие: в наличии
Артикул:00000003243
42 844 руб
- +

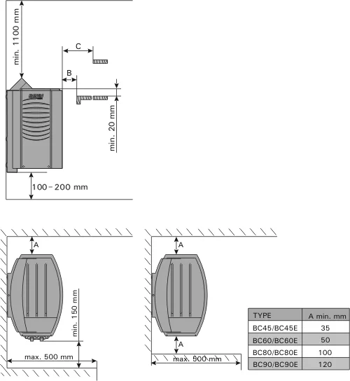
     Базовая каменка топ-класса Harvia Vega - это элегантная каменка необычайно проста в использовании. Каменка с наружным кожухом из нержавеющей стали придаст Вашей сауне современный вид. Для удобства органы управления эргономично расположены со стороны каменки. Модель Vega легко устанавливается на отдельный стенной кронштейн. Симметричный дизайн избавляет вас от необходимости изменять направление пара и обеспечивает простоту его регулировки. Все электрические подключения выполняются с боковой стороны каменки, что облегчает ее установку. Исполнение Vega позволяет устанавливать ее в нижней части стены сауны. Это гарантирует равномерное распределение тепла в сауне и его достаточное поступление на нижние скамьи.

Модели Vega BC45, BC60, BC80 и BC90 оснащены встроенной панелью управления.

*Внешний вид и комплектация товара может незначительно отличаться от фотографий на сайте

Характеристики товара

Глубина
310 мм
Вес камней
20 кг
Топливо
Электричество
Пульт управления
Встроенный
Мощность
4 кВт
Объем отапливаемого помещения
6 м3
Высота
540 мм
Материал
Сталь
Ширина
450 мм
Тип
Настенное
Вес Брутто
12 кг

Похожие товары

Harvia Пульт управления Xenio CX110

62 354 руб
- +

Harvia Trendi Kip-60T Steel

43 078 руб
- +

Harvia Cilindro PC 70Е без пульта

41 248 руб
- +

Harvia Trendi Kip-80T Steel

48 120 руб
- +
* Информация о товаре носит исключительно ознакомительный характер и не является публичной офертой.